12 Hamilton Terrace
Leamington Spa, CV32 4LYThe Space
Refurbished offices in highly regarded Town Centre location. Available Q1 2026.
At a glance
| Property Type | Offices |
| Tenure | To Let |
| Size | 545 to 1,563 sq ft |
| Business Rates | To be re-assessed |
| Energy Performance Rating | This property has been graded as E (109) |
Leamington Spa
7 mins
Warwick
40 mins
Warwick Parkway
65 mins
Kenilworth
78 mins
Chesham
1086 mins
Amersham
1119 mins
Chalfont and Latimer
1151 mins
Chorleywood
1189 mins
Key Points
- Set within an impressive Period terrace
- Nearby occupiers include solicitors, dentist, Citizen Advice and close to Police Station and Warwickshire Justice Centre.
- Private parking.
Description
Specification Includes:
Basement, ground and first floor available in mid terrace, Grade II Listed, property.
Lower ground floor can be rented independently and will have its own allocated access.
Units are currently undergoing refurbishment.
Private parking to the rear.
LED lighting.
Neutrally decorated.
Carpet tile floor coverings.
Perimeter trunking.
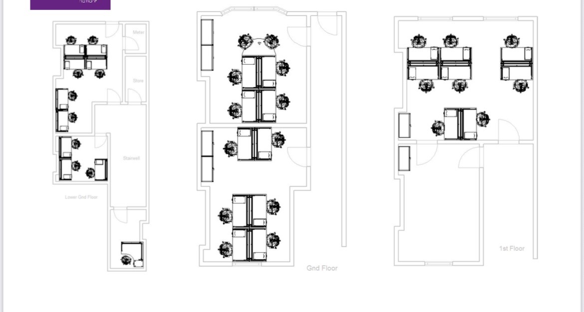
Available area
The accommodation comprises the following areas:
| Name | sq ft | sq m | Availability |
|---|---|---|---|
| Lower Ground | 545 | 50.63 | Available |
| Ground | 519 | 48.22 | Available |
| 1st | 499 | 46.36 | Available |
| Total | 1,563 | 145.21 |
The Location
Hamilton Terrace comprises an attractive terrace of period properties which have been converted to commercial uses and are set behind a service road leading off Holly Walk. A one-way road system leads from Parade via Regent Grove into Holly Walk and connects again onto Parade.
The area provides a mix of converted period properties together with some purpose-built larger offices. On Regent Grove, there a number of retail outlets including Presto Music, together with restaurants and high quality apartments forming part of Regent Court Shopping Development.
There is ample on street “Pay & Display” parking in the area which is supplemented by a Local Authority surface level ‘Pay & Display’ car park just off Newbold Street, which is 150 metres from the subject property. There are also some free unrestricted spaces at the eastern end of Regent Grove / Holly Walk.
As well as being a highly regarded Business Quarter of the town, Hamilton Terrace is a short walk from Parade, the prime shopping area, and Regent Court which has various bars and restaurants.
Services
We understand that all mains services are connected to the property with central heating via the gas fired combination boiler. The agents have not tested any apparatus on site and therefore, cannot verify the conditions.
Planning
We understand that the property has the benefit of planning permission for User Class E purposes (General Office Use). Interested parties are advised to make their own enquiries of Warwick District Council Planning Department on 01926 456760.
Anti Money Laundering
The Money Laundering Regulations require us to conduct checks upon all Purchasers including Tenants. Prospective Purchasers will need to provide proof of identity and residence. For a company any person owning more than 25% must provide the same.
Terms / Rent
Terms available upon request.